KOBLINGSØVELSE Nr. 2

EKSTRA STIKKONTAKT

 

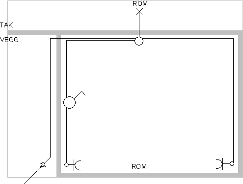
Når du er ferdig med jobben, kommer fru Maserud inn i rommet. Hun ser på det du har gjort, og hun ber deg om å montere en ekstra stikkontakt i den andre enden av rommet i tillegg til det du har gjort.

 

 

1: Lag koplingsskjema.

 

VEDLEGG 1.

 

TEGNING.

Lag tegning av koblinga.

TIPS.

 

KOBLINGSPRINSIPP.

Grunnleggende tegning for bryter skjema 1

 

2: Plukk ut nødvendig materiell, og monter dette på koblingsbrettet etter tegningene.

 

 

 

 

3. Sett opp en materialliste som viser det materiellet som er gått med til oppgaven.

 

VEDLEGG 2

 

MATERIALLISTE.

Skriv navnet på alt det materiellet du bruker.